Фильтры и сепараторы.
Что может быть проще?
Л. С. Марковский, Н. И. Иванова, «ПЕТЕРБУРГНИИХИММАШ».
Считается, что в технике нет ничего проще фильтра. Это не турбина и не арматура и не интеллектуальный датчик. Но все эти и многие другие устройства нуждаются в очищенном от пыли и капельной жидкости технологическом потоке. Сколько безнадежно испорченной арматуры, приборов, разрушенных деталей турбин повидали механики производств? Что касается арматуры, то чем лучше и дороже изделие, тем более оно требовательно к чистоте потока. Предложение фильтров огромно. Практически, по размаху оно может соперничать с рынком арматуры. Выбирайте по вкусу и наслаждайтесь результатом! В чем же дело? Почему фильтры всегда головная боль производства? На этом виде оборудования вступают в конфликт интересы сторон.
Механики службы эксплуатации хотят обслуживать фильтр как можно реже. Это не только снижение трудоемкости эксплуатации, но и повышение производительности, меньше переключений и отключений, меньше потери продукции. Для этого поверхность фильтрации должна быть максимальной. Чем больше поверхность, тем дольше пробег фильтра.
У инвестора понятное желание снизить капитальные затраты на строительство и быстрее получить прибыль. По его мнению фильтр должен быть как можно меньше и дешевле с минимальным сроком поставки.
Проектировщики смотрят на производство в комплексе. У маленького фильтра большое сопротивление, а это увеличение энергозатрат. Большой фильтр плохо вписывается в компоновку оборудования. Все-таки, это всего лишь вспомогательный компонент. И еще проблема: найти фильтр, удовлетворяющий требованиям технологии и возможностям компоновки не всегда просто.
Правда жизни
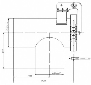
Часть1. Разработчик проекта конечно выбирает фильтр, учитывая все требования. Именно он рассчитывает допустимое гидравлическое сопротивление, назначает тонкость фильтрации, располагает фильтр на площадке, учитывает пожелание эксплуатации. По заданию разработчика проекта на свет появляются настоящие шедевры. Например, фильтр-тройник тонкой очистки с быстросъемным затвором, рис. 1. Что же в нём замечательного? Абсолютно всё: низкое сопротивление, удобная компоновка, высокая тонкость очистки и быстросъёмный затвор. Это он с виду простой, а на самом деле содержит много интересных технических решений.
Второй пример — роторный сепаратор, рисунки 2, 3. И от жидкости и от пыли почистит, и фильтрующий элемент самоочищающийся и колебаний расходов не боится.
Часть 2. Пришла пора начинать большую стройку. Объявляется тендер на строительство, на поставку оборудования. Пока идет раздел денежных потоков, неумолимо приближаются сроки пуска объекта. После этого Поставщику фильтра предлагается поставить продукцию за 2 месяца. Если фильтры массово изготавливаются и есть в наличии, это реальный срок. А если требования специфические и надо изготавливать специально под заказ, в такой срок невозможно уложиться.
Часть 3. Собираются уважаемые люди: Инвестор, Строитель, Автор проекта и думают. Думают каждый о своем: Инвестор — о деньгах, Строитель — о сроках, Автор — о работоспособности. Соответственно, решения каждый предлагает разные. Вспомним знаменитую фразу И. В. Гете: «Говорят, что между двумя противоположными мнениями находится Истина. Между ними лежит проблема». В поисках истины выбираем «золотую середину» и… получаем проблему.

Рисунок 1

Рисунок 2

Рисунок 3
Проблема
Найдётся Поставщик фильтров, который уважаемому собранию пообещает в срок уложиться. Все довольны. Здесь, как правило, два варианта. Или фильтр есть в наличии, но не подходит ни по компоновке, ни по техническим требованиям, или поставщик точно сорвет срок, но надеется, что строго не спросят. Недалеко мы ушли от лозунга «Даешь пятилетку в три года!». Знаем, чем это оборачивается: отгремит музыка торжественного пуска, начинаем все латать-доводить. Хорошо, если основное оборудование, арматуру, КИП не загубим из-за плохой работы неподходящего фильтра или из-за его отсутствия. В итоге, денег-времени в разы больше уйдёт. Но кто считает? Особенно обидно, что объект на десятилетия строится, а из-за спешки получается хуже, чем могло быть. И механики мучаются, и производительность не та.
Решение
Остановимся на минутку и посмотрим, что имеем. На самом деле все имеем. Деньги, специалисты, ресурсы — в наличии. Надо только своевременно все заказать и нужного качества. А потом с чувством-толком качественно построить. И всё получится! И нужные будут фильтры на нужном месте.
В итоге, оборудование выбрано, проект готов.


